全63拠点
関西拠点数No.1

先行予約キャンペーン

Re:ZONE 豊中01【2026年2月初旬OPEN予定】

登記可能完全個室

  • Re:ZONE
  • Re:ZONE
★お得なキャンペーン実施中★

先行予約キャンペーン
2026年2月初旬OPEN予定

※入会金:通常55,000円(税込)

2026年2月2日(月)までの申込み

※予告なくキャペーンが終了する場合があります。

豊中駅徒歩1分で、あなたの事業を育てる“完全個室オフィス”

阪急豊中駅徒歩1分に、落ち着いて仕事に集中できる“完全個室”のレンタルオフィスが誕生しました。
自宅では作業に集中しづらい、自宅住所を事業用に使うのが不安、サロンや士業として小さく開業したい──そんな想いに応えるのが「Re:ZONE豊中01」です。

全室鍵付きの完全個室で、法人登記・免許登録にも対応。デスク・チェア・棚を標準装備し、各室には個別空調を完備。
24時間365日利用できるため、時間に縛られず、自分のペースで仕事を進められます。

また、豊中エリアでじっくり販路を広げたい方にとっても最適な拠点です。
あなたの事業を安心して育てられる空間として、ぜひご活用ください。

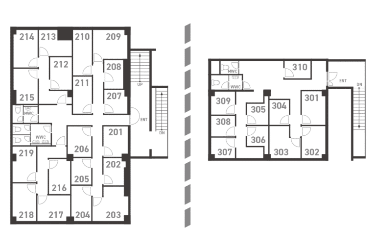
空室情報・フロアマップ 先行予約キャンペーン

部屋番号 空室状況 月々賃料(税込) 利用目安 備考
201 空室 44,000円 1~2人用
202 空室 36,300円 1人用
203 申込あり 63,250円 1~3人用 窓あり
204 空室 44,000円 1~2人用
205 空室 36,300円 1人用
206 空室 46,200円 1~2人用
207 空室 36,300円 1人用
208 空室 36,300円 1人用
209 空室 59,400円 1~3人用 窓あり
210 空室 53,900円 1~3人用 窓あり
211 空室 46,200円 1~2人用
212 空室 44,000円 1~2人用
213 空室 44,000円 1~2人用
214 空室 53,900円 1~3人用
215 空室 48,400円 1~2人用
216 空室 46,200円 1~2人用
217 空室 48,400円 1~2人用 窓あり
218 空室 53,900円 1~3人用 窓あり
219 空室 38,500円 1~2人用
301 申込あり 48,400円 1~2人用 窓あり
302 空室 46,200円 1~2人用
303 空室 49,500円 1~2人用 窓あり
304 空室 34,100円 1人用
305 申込あり 31,900円 1人用
306 空室 34,100円 1人用
307 空室 31,900円 1人用 窓あり
308 空室 31,900円 1人用
309 空室 34,100円 1人用
310 申込あり 31,900円 1人用 窓あり

 

2F

rz豊中01a Floormap
Re:ZONE 豊中01【2026年2月初旬OPEN予定】 10

MAP

信頼感×好立地を備えた豊中の完全個室のレンタルオフィス

豊中駅周辺で一人から使えるオフィスをお探しの方に朗報です。
「自宅では集中できない」
「登記や免許登録を自宅住所にしたくない」
「豊中でサロンを開業したい」
そんな方にぴったりの完全個室オフィスが、豊中に誕生しました。

阪急宝塚線「豊中駅」から徒歩1分。
落ち着いた住環境でありながら、駅近という好立地が魅力です。
Re:ZONE豊中01は、周囲の音を気にせずに作業へ集中できる“完全個室”のレンタルオフィス。

士業の方には「免許登録に使える事務所」として、サロン開業の方には「ブランドづくりができる空間」として、
さらには“集中できる自分専用のワークスペース”として幅広く選ばれています。

全室鍵付きの個室にデスク・チェア・鍵付き引き出しを完備し、法人登記・免許登録にも対応。
24時間365日利用でき、ライフスタイルに合わせて柔軟に活用いただけます。

Re:ZONEの主な利用方法

Re:ZONE豊中01は、豊中市で挑戦する起業家や副業ワーカーの多様なニーズに応える空間です。

オフィス利用
 行政書士、士業、不動産業など、集中して業務に取り組むための環境や免許取得に最適。

店舗利用
 ネイルサロンやカウンセリングルームとして、駅近の好立地を活かし集客力をアップ。

 ※保健所登録には対応しておりません。

デザイン・制作・作業スペース
 WEB制作や動画編集など、集中して創作活動を行いたいクリエイターに最適。
 またリモートワークの拠点としてもご利用いただけます。

サテライトオフィス

 交通アクセスに優れた淀屋橋エリアは、取引先への移動もスムーズ。
 支店やサテライトオフィスとしても最適な立地です。

Re:ZONE豊中01のサービス・設備

入居したその日から仕事ができる環境を整えています。
必要な備品・通信環境がそろっているので、開業もスムーズです。

【充実の設備】
〇完全個室
〇デスク・椅子・鍵付きキャビネット設置済み
〇各部屋 個別空調完備
〇各居室 個別ポスト標準設置
〇インターネット利用無料

【快適・安心な環境】
〇24時間365日利用可能
〇法人登記・免許登録OK
〇防犯カメラ設置

Re:ZONE入居者様の声