全63拠点
関西拠点数No.1

先行予約キャンペーン

Re:ZONE 淀屋橋02【2026年2月中旬OPEN予定】

登記可能完全個室

  • Re:ZONE
  • Re:ZONE
  • Re:ZONE
  • Re:ZONE
★お得なキャンペーン実施中★

先行予約キャンペーン
2026年2月中旬OPEN予定

※入会金:通常55,000円~88,000円(税込)

2026年2月2日(月)までの申込み

※予告なくキャペーンが終了する場合があります。

淀屋橋2拠点目となる完全個室レンタルオフィスRe:ZONEをOPEN!

大阪・淀屋橋に「Re:ZONE」2拠点目がオープンしました。
御堂筋線「淀屋橋駅」から徒歩3分。
完全個室・登記可能なレンタルオフィスです。

24時間365日利用可能。
ネット無料・個別空調・セキュリティも完備。
ビジネス街の中心で、静かに集中できる空間を手頃な価格でご提供します。

大阪ビジネスの中心地という「信頼される住所」、「集中して作業できる個室空間」で、あなたのビジネスを次のステージへ。
新規事業のスタートや、信頼を築く拠点に最適なオフィスです。

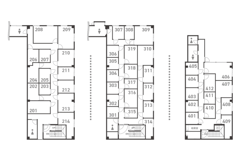
空室情報・フロアマップ 先行予約キャンペーン

部屋番号 空室状況 月々賃料(税込) 利用目安 備考
201 空室 80,300円 1~3人用
202 空室 55,000円 1~2人用
203 空室 38,500円 1人用
204 空室 48,400円 1~2人用
205 空室 46,200円 1~2人用
206 空室 41,800円 1人用
207 空室 44,000円 1人用
208 空室 104,500円 1~4人用 窓あり
209 申込あり 92,400円 1~4人用 窓あり
210 申込あり 73,700円 1~3人用 窓あり
211 申込あり 55,000円 1~2人用 窓あり
212 空室 55,000円 1~2人用 窓あり
213 空室 75,900円 1~3人用 窓あり
214 空室 75,900円 1~3人用 窓あり
301 空室 38,500円 1人用
302 空室 38,500円 1人用
303 空室 38,500円 1人用
304 空室 38,500円 1人用
305 空室 38,500円 1人用
306 空室 38,500円 1人用
307 空室 41,800円 1人用
308 申込あり 38,500円 1人用 窓あり
309 空室 93,500円 1~4人用 窓あり
310 空室 91,300円 1~4人用 窓あり
311 空室 44,000円 1~2人用 窓あり
312 申込あり 44,000円 1~2人用 窓あり
313 申込あり 44,000円 1~2人用 窓あり
314 空室 44,000円 1~2人用 窓あり
315 空室 38,500円 1人用
316 空室 67,100円 1~3人用
317 空室 38,500円 1人用
318 空室 49,500円 1~2人用
319 空室 67,100円 1~3人用
401 申込あり 37,400円 1人用
402 空室 37,400円 1人用
403 空室 38,500円 1人用
404 空室 38,500円 1人用
405 空室 38,500円 1人用
406 空室 107,800円 1~4人用 窓あり
407 空室 52,800円 1~2人用 窓あり
408 空室 41,800円 1~2人用 窓あり
409 空室 42,900円 1~2人用
410 空室 41,800円 1~2人用
411 空室 38,500円 1人用
412 空室 53,900円 1~2人用

 

2/3/4F

rz淀屋橋02_Floormap
Re:ZONE 淀屋橋02【2026年2月中旬OPEN予定】 12

MAP

信頼感×好立地を備えた淀屋橋の完全個室のレンタルオフィス

Re:ZONE淀屋橋02の魅力と選ばれる理由

「Re:ZONE淀屋橋02」は、御堂筋沿い・大阪のビジネスの中心地「淀屋橋」にある完全個室オフィスです。
周囲には大手企業や士業事務所、金融機関が立ち並び、信頼を感じさせるエリアです。

「大阪の一等地で事業を始めたい」
「クライアントに信頼される住所で登記したい」
そんな方に最適なオフィスです。

— “働く場所”が、あなたのブランドになる —

Re:ZONE淀屋橋02は、信頼性と利便性を兼ね備えた“ブランドアドレス”。
その価値を、あなたの手の届く価格でご利用いただけます。

多様な利用方法であなたのビジネスを後押し

Re:ZONE淀屋橋02は、淀屋橋で挑戦する起業家や副業ワーカーの多様なニーズに応える空間です。

オフィス利用
 行政書士、士業、不動産業など、集中して業務に取り組むための環境や免許取得に最適。
サテライトオフィス

 交通アクセスに優れた淀屋橋エリアは、取引先への移動もスムーズ。
 支店やサテライトオフィスとしても最適な立地です。

店舗利用
 ネイルサロンやカウンセリングルームとして、駅近の好立地を活かし集客力をアップ。

 ※保健所登録には対応しておりません。
デザイン・制作・作業スペース
 WEB制作や動画編集など、集中して創作活動を行いたいクリエイターに最適。
 またリモートワークの拠点としてもご利用いただけます。

すぐに使える、整った設備とサービスのRe:ZONE淀屋橋02

入居したその日から仕事ができる環境を整えています。
必要な備品・通信環境がそろっているので、開業もスムーズです。

【充実の設備】
〇完全個室
〇デスク・椅子・棚設置済み
〇各部屋 個別空調完備
〇各居室 個別ポスト標準設置
〇インターネット利用無料

【快適・安心な環境】
〇24時間365日利用可能
〇法人登記・免許登録OK
〇防犯カメラ設置

Re:ZONE入居者様の声