空室情報・フロアマップ 入会金0円キャンペーン
| 部屋番号 | 空室状況 | 月々賃料(税込) | 利用目安 | 備考 |
|---|---|---|---|---|
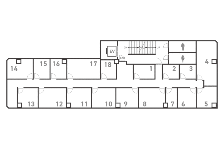
| 4 | 空室 | 85,800円 | 1~4人用 | 窓あり |
| 6 | 空室 | 46,200円 | 1~2人用 | |
| 8 | 空室 | 60,500円 | 1~3人用 | 窓あり |
| 11 | 空室 | 57,200円 | 1~3人用 | 窓あり |
| 12 | 空室 | 59,400円 | 1~3人用 | |
| 13 | 空室 | 49,500円 | 1~3人用 | |
| 14 | 空室 | 58,300円 | 1~3人用 | 窓あり |
| 16 | 空室 | 42,350円 | 1~2人用 |
アンケートに答えて
入会金0円!
※入会金:通常55,000円(税込)
※予告なくキャペーンが終了する場合があります。
全国的に独立・開業に挑戦する方が増加している中、新開地周辺には、
安心して使える個室オフィスやサロン向けスペースが少ないのが現状でした。
そんな皆様の声にお応えして、このたびRe:ZONE神戸新開地01がオープンしました。
●自由で快適な「オフィス環境」
・完全個室:プライバシーを守り、集中できる自分だけの空間。
・24時間365日利用可:早朝深夜問わず、いつでも利用可能。
・個別空調:周りを気にせず、好みの温度で作業できます。
・ネット利用無料:ネット契約手続き不要です。
・個別ポスト:専用ポストを無料提供。郵便物を見られる心配はありません。
●許認可・開業に強い「ビジネス活用」
・各種免許取得:士業や人材紹介業など個室要件に対応。
・サロン開業:ネイルサロン等店舗利用も可能。
・法人登記可能:登記に追加費用はかかりません。
| 部屋番号 | 空室状況 | 月々賃料(税込) | 利用目安 | 備考 |
|---|---|---|---|---|
| 4 | 空室 | 85,800円 | 1~4人用 | 窓あり |
| 6 | 空室 | 46,200円 | 1~2人用 | |
| 8 | 空室 | 60,500円 | 1~3人用 | 窓あり |
| 11 | 空室 | 57,200円 | 1~3人用 | 窓あり |
| 12 | 空室 | 59,400円 | 1~3人用 | |
| 13 | 空室 | 49,500円 | 1~3人用 | |
| 14 | 空室 | 58,300円 | 1~3人用 | 窓あり |
| 16 | 空室 | 42,350円 | 1~2人用 |

「自宅では作業できない」
「登記や免許登録を自宅住所にしたくない」
そんな方にぴったりのオフィスが、神戸新開地に誕生しました。
阪急神戸線・阪神電車が乗り入れる神戸高速線「新開地駅」から徒歩2分。
Re:ZONE神戸新開地01は、完全個室で安心して利用できるレンタルオフィスです。
新開地駅はJR神戸駅と地下道でつながっており、JR神戸駅からも徒歩での移動が可能。
特急が停車するアクセスの良さに加え、駅前には商業施設が集まっており、
士業の方の顧客開拓や、サロン利用の集客にも適したエリアです。
士業の方には、地元で開業する事務所として、
サロン開業を目指す女性には「あなたのブランドを築ける空間」として、
副業ワーカーには「自分専用の作業場所」として選ばれています。
全室鍵付きの個室で、家具・個別空調・ネット利用無料。
法人登記・免許登録にも対応しており、開業に必要な環境がすべてそろっています。
さらに24時間365日利用可能。
私達は全国60拠点以上を展開し、皆様の創業期の不安に寄り添ってきました。
Re:ZONEはただオフィスを提供するだけでなく、「開業を成功に導く環境」をご提供しています。
Re:ZONE神戸新開地01は、新開地で挑戦する起業家や副業ワーカーの多様なニーズに応える空間です。
〇オフィス利用
士業、人材業など、集中して業務に取り組むための環境や免許取得に最適。
〇店舗利用
ネイルサロンやカウンセリングルームとして、駅近の好立地を活かし集客力をアップ。
※保健所登録には対応しておりません。
〇デザイン・制作・作業スペース
WEB制作や動画編集など、人目を気にせず創作活動を行いたいクリエイターに最適。
またリモートワークの拠点としてもご利用いただけます。
〇サテライトオフィス
三ノ宮、梅田方面、有馬三田、須磨明石にも可能な交通アクセスに優れたエリア。
支店やサテライトオフィスとしても最適な立地です。
入居したその日から仕事ができる環境を整えています。
必要な備品・通信環境がそろっているので、開業もスムーズです。
【充実の設備】
〇完全個室
〇デスク・椅子・鍵付きキャビネット設置済み
〇各部屋 個別空調完備
〇各居室 個別ポスト標準設置
〇インターネット利用無料
【快適・安心な環境】
〇24時間365日利用可能
〇法人登記・免許登録OK
〇防犯カメラ設置