空室情報・フロアマップ アンケートに答えて入会金0円キャンペーン
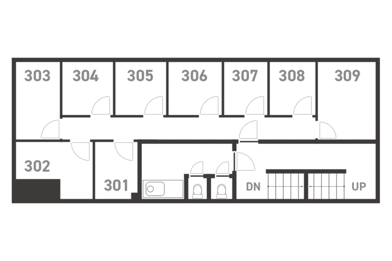
| 部屋番号 | 空室状況 | 月々賃料(税込) | 利用目安 | 備考 |
|---|---|---|---|---|
| 306 | 空室 | 39,600円 | 1~2人用 | |
| 307 | 2026年4月 空き予定 | 32,450円 | 1人用 |
アンケートに答えて
入会金0円!
※入会金:通常55,000円(税込)
※予告なくキャペーンが終了する場合があります。
「Re:ZONE泉佐野01」は、泉佐野駅から徒歩2分の好立地に位置する、完全個室・登記可能なレンタルオフィスです。
24時間365日利用可能で、インターネット無料・個別空調・セキュリティ完備。
快適で集中できる環境を、リーズナブルな価格でご利用いただけます。
また、本施設は泉佐野市が推進する「スモールスタートビジネス支援補助金」の対象レンタルオフィスです。
| 部屋番号 | 空室状況 | 月々賃料(税込) | 利用目安 | 備考 |
|---|---|---|---|---|
| 306 | 空室 | 39,600円 | 1~2人用 | |
| 307 | 2026年4月 空き予定 | 32,450円 | 1人用 |

「自宅では集中できない」
「免許登録を自宅住所にしたくない」
そんな方にぴったりのオフィスが、泉佐野市に誕生。
南海本線「泉佐野駅」から徒歩2分。
Re:ZONE泉佐野01は、完全個室・低コストで利用できるレンタルオフィス。
“仕事に集中するための空間”として多くの方に選ばれています。
また、本施設は泉佐野市が推進する「スモールスタートビジネス支援補助金」の対象レンタルオフィスです。
起業・副業など、多様な働き方を後押しするため、賃料から月額5,000円×3か月(最大15,000円)の補助金を受付可能となります。
期間が決まった補助金です。気になる方は、早めにお問合せ下さいませ。
全室が鍵付きの完全個室タイプ。
周囲の音や視線を気にせず、静かな環境で業務に集中できます。
法人登記や行政書士などの免許登録にも利用でき、
自宅住所を公開せずに安心して事業を始めることが可能です。
泉佐野市で「手ごろな1人用の事務所が見つからない」とお悩みの方に、
信頼感ある住所と働きやすい空間を提供します。
入居したその日から仕事ができる環境を整えています。
必要な備品・通信環境がそろっているので、開業もスムーズです。
【充実の設備】
〇完全個室
〇デスク・椅子・棚設置済み
〇各部屋 個別空調完備
〇各居室 個別ポスト標準設置
〇インターネット利用無料
【快適・安心な環境】
〇24時間365日利用可能
〇法人登記・免許登録OK
〇防犯カメラ設置
Re:ZONE泉佐野01は、従来のオフィス利用にとどまらず、泉佐野市で新たに挑戦する起業家や副業ワーカーの多様なニーズに応える空間です。
〇オフィス利用
行政書士、士業、不動産業など、集中して業務に取り組むための環境や免許取得に最適。
〇店舗利用
ネイルサロンやカウンセリングルームとして、駅近の好立地を活かし集客力をアップ。
〇デザイン・制作作業スペース
WEB制作や動画編集など、集中して創作活動を行いたいクリエイターに最適。
〇サテライトオフィス・リモートワーク
すぐにビジネスを開始できるので、自宅以外で集中して作業したいリモートワーカーやサテライトオフィスとしても最適。
※保健所登録には対応しておりません。


