空室情報・フロアマップ 入会金&1ヶ月賃料半額キャンペーン
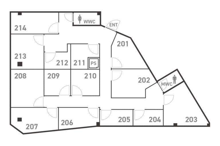
| 部屋番号 | 空室状況 | 月々賃料(税込) | 利用目安 | 備考 |
|---|---|---|---|---|
| 203 | 空室 | 66,000円 | 1~3人 | |
| 206 | 2026年3月 空き予定 | 40,700円 | 1~2人 | 窓あり |
| 208 | 空室 | 62,700円 | 1~3人 | 窓あり |
入会金 半額!
※入会金:通常55,000円(税込)
賃料1ヶ月間 半額!
※予告なくキャペーンが終了する場合があります。
Re:ZONE 吹田01は、JR吹田駅から徒歩4分の便利な好立地。しかも、完全個室の空間で、24時間365日自由に利用でき、作業効率の高い環境を提供します。法人登記が可能な低コストオフィスで、ビジネスのスタートアップに最適です。
アクセスの良さに加え、個別空調やインターネット無料など快適な作業環境を完備。
セキュリティも万全で、安心して仕事に集中できます。
さらに、Re:ZONEの完全個室だからこそ居室での来客対応も可能。行政書士やネイルサロン、個人塾など、さまざまな業種での利用実績がありプライバシーを重視したビジネス展開が可能です。
| 部屋番号 | 空室状況 | 月々賃料(税込) | 利用目安 | 備考 |
|---|---|---|---|---|
| 203 | 空室 | 66,000円 | 1~3人 | |
| 206 | 2026年3月 空き予定 | 40,700円 | 1~2人 | 窓あり |
| 208 | 空室 | 62,700円 | 1~3人 | 窓あり |




Re:ZONE吹田01は、JR京都線「吹田駅」から徒歩4分の駅近オフィス。
関西圏だけでなく、東京・名古屋・福岡など遠方からのビジネス拠点としても最適です。
安心・信頼のビジネス拠点として、幅広い職種に選ばれています。
Re:ZONE吹田01は、さまざまな用途・業種にご利用いただけます