空室情報・フロアマップ アンケートに答えて賃料1ヶ月間0円キャンペーン
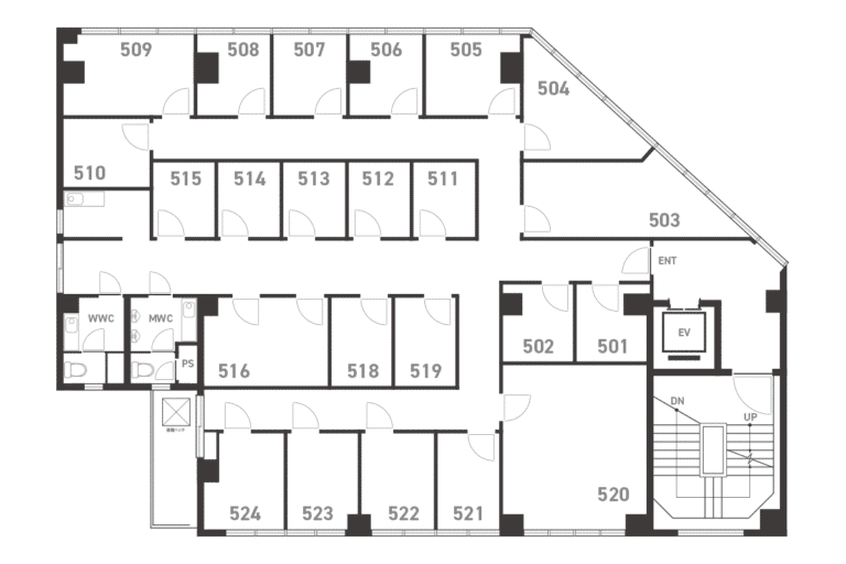
| 部屋番号 | 空室状況 | 月々賃料(税込) | 利用目安 | 備考 |
|---|---|---|---|---|
| 502 | 空室 | 36,850円 | 1~2名 | |
| 506 | 空室 | 46,200円 | 1~2名 | |
| 513 | 空室 | 35,200円 | 1名 | |
| 515 | 空室 | 35,200円 | 1名 | |
| 516 | 2025年12月 空き予定 | 72,600円 | 1~4名 | |
| 522 | 空室 | 50,600円 | 1~2名 |
Re:ZONE Key Siteは、紀陽銀行が主体となって運営する施設「Key Site(キーサイト)」の5階にある完全個室のレンタルオフィスです。
和歌山駅から徒歩圏内の便利な立地。しかも完全個室の空間で、24時間365日自由に利用でき、作業効率の高い環境を提供します。法人登記が可能な低コストオフィスで、ビジネスのスタートアップに最適です。
アクセスの良さに加え、個別空調やインターネット無料など快適な作業環境を完備。
セキュリティも万全で、安心して仕事に集中できます。
さらに、Re:ZONEの完全個室だからこそ居室での来客対応も可能。行政書士やネイルサロン、個人塾など、さまざまな業種での利用実績がありプライバシーを重視したビジネス展開が可能です。
「Key Site(キーサイト)」及び「Re:ZONE Key Site」は和歌山の地域経済の活性化に貢献し、多様な働き方やイノベーションを支援します。
起業家の皆様にとって理想的な立地と設備を備えたビジネス拠点で、あなたの成長をサポートします。
賃料1ヶ月間0円!
※予告なくキャペーンが終了する場合があります。
| 部屋番号 | 空室状況 | 月々賃料(税込) | 利用目安 | 備考 |
|---|---|---|---|---|
| 502 | 空室 | 36,850円 | 1~2名 | |
| 506 | 空室 | 46,200円 | 1~2名 | |
| 513 | 空室 | 35,200円 | 1名 | |
| 515 | 空室 | 35,200円 | 1名 | |
| 516 | 2025年12月 空き予定 | 72,600円 | 1~4名 | |
| 522 | 空室 | 50,600円 | 1~2名 |

JR和歌山駅からのアクセスが非常に良く、通勤や来客にも大変便利。ビジネスのスピードを加速させる立地は、起業家やフリーランスの強い味方です。
SECOMのセキュリティシステムを導入しており、24時間365日ご利用いただけます。
フロア入口のスマートロック、防犯カメラ、各個室の鍵を設置しています。
時間外の入退館は、SECOMカードによって管理されます
| 常時間 (7:00 – 21:00) | ビル正面・複数入口より入館可能。エレベーターまたは階段で5階の当フロアまで直接お越しいただけます。 |
| 時間外 (21:00 – 7:00) | SECOMカードを利用し、指定の裏口から入館します。1階から2階は階段で移動し、2階から5階へはエレベーターまたは階段を利用します。 |
Re:ZONE KeySiteは各部屋ごとに施錠ができる完全個室です。周囲からの視線や音を遮るため、作業に集中しやすい環境です。
法人登記が無料で行えるため、初期費用や月々の固定費を抑えながら、安心して事業をスタートすることができます。
各個室には、以下の設備が標準で備わっています。
個別空調システム: 各室で温度調節が可能なので、季節を問わず快適な環境を実現できます。
インターネット: 各室にLANポートを設置しています。無料でご利用いただけます。(LANケーブルはご持参ください)
個別空調システム:各室で温度調節が可能なので、季節を問わず快適な環境を実現。
インターネット無料:居室内にLANケーブル差込口がございます。(※LANケーブルはお客様側でご用意が必要です。)
万全のセキュリティ対策:安心してビジネスに専念できるセキュリティシステムを完備
Re:ZONE Key Siteは、従来のオフィス利用にとどまらず、様々なニーズに応える多彩な利用方法を提供しています。
オフィス利用:行政書士、士業、不動産業など、集中して業務に取り組むための環境や免許取得に最適。
店舗利用:ネイルサロンやカウンセリングルームとして、駅近の好立地を活かし集客力をアップ。
※保健所登録には対応しておりません。
デザイン・制作作業スペース:WEB制作や動画編集など、集中して創作活動を行いたいクリエイターに最適。
サテライトオフィス・リモートワーク:すぐにビジネスを開始できるので、自宅以外で集中して作業したいリモートワーカーやサテライトオフィスとしても最適。
「Key Site」は、和歌山・大阪を基盤とする地域金融機関「紀陽銀行」、ソーシャルコワーキングの企画・開発・運営を手がける「ATOMica」、マネーフォワードグループのベンチャーキャピタル「HIRAC FUND」、そして当社不動産管理、レンタルオフィス事業を行う「株式会社K-FIRST」が共同で企画・運営する複合施設です。
本施設は、「Region Bridge」(スタートアップと地域をつなぐ架け橋)をコンセプトに掲げ、スタートアップ、起業家、学生、地場企業などが相互に連携・交流し、成長する場を提供します。和歌山地域経済のさらなる発展を目指し、多様なコミュニティの交差点として機能することを目指しています。Re:ZONEは「Key Site」の5階に位置し、和歌山県内での創業後の支援、新たなビジネス創出に貢献します。
本施設は、「Region Bridge」(スタートアップと地域をつなぐ架け橋)をコンセプトに掲げ、スタートアップ、起業家、学生、地場企業などが相互に連携・交流し、成長する場を提供します。和歌山地域経済のさらなる発展を目指し、多様なコミュニティの交差点として機能することを目指しています。Re:ZONEは「Key Site」の5階に位置し、和歌山県内での創業後の支援、新たなビジネス創出に貢献します。